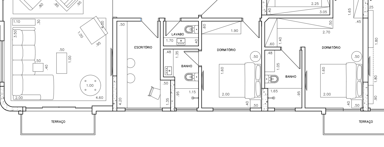
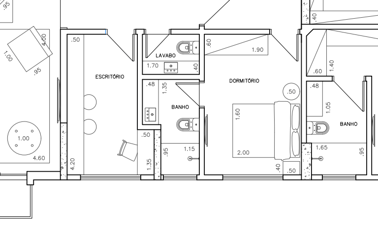
PROJETO ARQUITETÔNICO
Desenvolvo projetos arquitetônicos para construção, reforma e restauro, tendo especial interesse no desenvolvimento de propostas para áreas rurais ou áreas urbanas tombadas. A criação alia o atendimento às necessidades e às expectativas dos clientes e a critérios técnicos para garantia de funcionalidade, durabilidade, conforto e sustentabilidade. Tenho um olhar voltado ao emprego de materiais da região e técnicas construtivas tradicionais, sem negligenciar possibilidades e benefícios oferecidos por soluções contemporâneas.
o processo
A criação de um projeto arquitetônico envolve diversas etapas. Realiza-se inicialmente uma reunião com os clientes para definir objetivos, necessidades e restrições. Em seguida, há a fase de estudo preliminar, em que são elaborados os primeiros esboços, considerando aspectos estéticos, funcionais e técnicos. Com base nos feedbacks dos clientes e ajustes acordados, avança-se para o desenvolvimento do anteprojeto, com plantas, cortes, fachadas e sugestões de materiais e acabamentos. A próxima etapa abrange a aprovação legal, envolvendo a submissão do projeto arquitetônico às normas e legislações locais, buscando a autorização para a construção. Por fim, é desenvolvido o projeto executivo e iniciada a obra, supervisionada para garantir um resultado final de qualidade e conforme idealizado pelos clientes.
OUTROS SERVIÇOS
REGULARIZAÇÃO DE IMÓVEIS
Contar com a assistência profissional durante o processo de regularização de imóveis é favorável para acelerar o processo, evitar erros e garantir a conformidade com todas as exigências legais e normativas. Tenho especial experiência com a regularização de imóveis junto ao Instituto do Patrimônio Histórico e Artístico Nacional (IPHAN) e à Prefeitura Municipal de Tiradentes. Produzo documentos necessários à obtenção de selos de aprovação e Habite-se, gerencio a inscrição no Cadastro Nacional de Obras (CNO), emito a Certidão Negativa de Débitos de Obra (CND) junto à Receita Federal e realizo averbação da construção no Cartório de Registro de Imóveis.
GERENCIAMENTO DE OBRAS
Ofereço o serviço de gerenciamento completo de obras, incluindo orientação técnica de todos os serviços a serem executados, levantamentos precisos de materiais necessários, orçamentos e negociações, controle de estoque, conferência de entregas e contratação e gestão de funcionários e fornecedores. Os clientes recebem relatórios quinzenais indicando a evolução da obra e planilhas com os custos previstos e gerados.
